
3961 Pinnacles Ct, Evans, CO 80634
3961 Pinnacles Ct, Evans, CO 80634
Unit
- $1,950 / month
- 3 Beds
- 2.5 Baths
- 1,385 sq. ft.
- Available Jan 29
Applicant has the right to provide the property manager or owner with a Portable Tenant Screening Report (PTSR) that is not more than 30 days old, as defined in § 38-12-902(2.5), Colorado Revised Statutes; and 2) if Applicant provides the property manager or owner with a PTSR, the property manager or owner is prohibited from: a) charging Applicant a rental application fee; or b) charging Applicant a fee for the property manager or owner to access or use the PTSR.
Map of 3961 Pinnacles Ct
Nearby Colleges and Universities
School
Commute Time (Distance)
Drive: 9 min (5 mi)
Details
Property Information
- 1 unit
Fees and Policies
The fees below are based on community-supplied data and may exclude additional fees and utilities.
No Pets Allowed
Moving to Greeley, Evans, CO
Shopping Centers
Shoppers will appreciate 3961 Pinnacles Ct proximity to Northpoint Center, Greeley Commons, and Elk Lakes Shopping Center. Northpoint Center is 1.2 miles away, and Greeley Commons is within a 29 minute walk.
Property Details
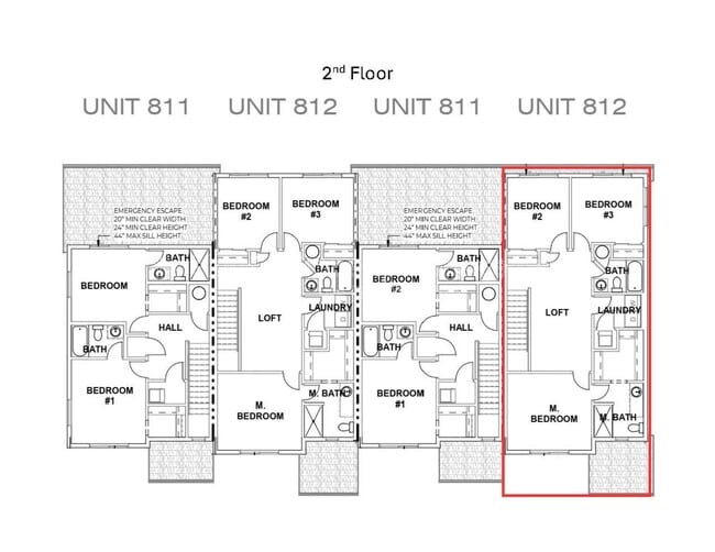
**NOW PRE-LEASING!! Available for move-in 1/29/26! Free to Apply! $0 Application Fee!!** Brand new, large 3-bed + loft, 2.5-bath townhouse in the Liberty Draw subdivision of west Evans, CO! This Silvercliffe model is built by Baessler Homes, one of... Northern Colorado's premier builders. The main floor features low maintenance luxury plank vinyl flooring, kitchen with quartz counters and a beautiful stainless appliance package. Also on the main floor is a 1/2 bath, and access to the 2-car heated garage. The upper level is perfectly designed with 3 bedrooms, a large loft/2nd living area and a laundry area (washer/dryer included!). One of the three bedrooms upstairs is the primary suite which showcases a private primary bath and large walk-in closet.
Liberty Draw residents enjoy their very own dog park and a brand-new park with playground, perfect for outdoor fun. Easy access to the Centerplace shopping center, HWY 34, and HWY 85. Liberty Draw is the perfect place to call home, being just an hour's drive from Denver, Fort Collins, Boulder, and Longmont.
GENERAL INFORMATION
• Offered by His House Property Management
• We are seeking long-term tenants
• Visit our website today to complete an online rental application
• No smoking of any kind
• No possession, use, or cultivation of marijuana
• PET FRIENDLY! Maximum of 2 pets. Age, breed, and size restrictions apply.
• Tenant pays for all utilities (water, sewer, gas, electric, cable, internet, trash)
• Photos and Video Tour were previously recorded and is solely for the purpose of allowing prospective tenants to conveniently see the layout of the unit. The present-day condition and inclusions may vary slightly as compared to the video tour.
DISCLOSURES
• The advertising photos and video tour are solely for the purpose of allowing prospective tenants to conveniently see the layout of the unit. The present-day condition, inclusions, and paint colors may vary as compared to the photos and video. Prospective tenants are encouraged to conduct an in-person viewing of the unit.
• The stated listing information contained within this ad is considered reliable but not guaranteed.
FEES
• $55 Application Fee. Application fees charged are based on average cost incurred by His House Property Management in processing the rental application ($34.45 paid to third-party screening company, $20.55 to His House Property Management for application processing, review, and to conduct employment verifications). Colorado HB19-1106.
• $20 Monthly Resident Benefits Fee. This is a monthly mandatory fee charged to all residents and retained by His House Property Management. The advertised Rent will be increased by $20 per month. This fee is due at the time the tenant takes possession.
• $250 One-Time Lease Administration Fee. This is a one-time mandatory fee charged to all residents and retained by His House Property Management. This fee is due at the time the tenant takes possession of the unit.
• Security deposit payments are required to be paid in Certified Funds (Cashier's Check or Money Order).
• Tenant must purchase and maintain a Renter’s Insurance policy with limits of liability no less than $100,000 prior to the beginning of the lease term and subsequently upon request.
PET FEES
• If you have Pets, you will be required to pay fees to a third-party software company (PetScreening) for the creation of pet profile(s). There is no charge ($0) for assistance animal accommodation requests or no pet/animal profiles.
His House Property Management is committed to compliance with all federal, state, and local fair housing laws. His House Property Management will not discriminate against any person because of race, color, religion, national origin, sex, familial status, disability, or any other specific classes protected by applicable laws.
AMENITIES:
* Central A/C
* Stainless Appliance Package
* Heated 2-Car Garage
* Washer/Dryer Included
By submitting your information on this page you consent to being contacted by the Property Manager and RentEngine via SMS, phone, or email.
**NOW PRE-LEASING!! Available for move-in 1/29/26! Free to Apply! $0 Application Fee!!** Brand new, large 3-bed + loft, 2.5-bath townhouse in the Liberty Draw subdivision of west Evans, CO! This Silvercliffe model is built by Baessler Homes, one of Northern Colorado's premier builders. The main floor features low maintenance luxury plank vinyl flooring, kitchen with quartz counters and a beautiful stainless appliance package. Also on the main floor is a 1/2 bath, and access to the 2-car heated garage. The upper level is perfectly designed with 3 bedrooms, a large loft/2nd living area and a laundry area (washer/dryer included!). One of the three bedrooms upstairs is the primary suite which showcases a private primary bath and large walk-in closet.
Liberty Draw residents enjoy their very own dog park and a brand-new park with playground, perfect for outdoor fun. Easy access to the Centerplace shopping center, HWY 34, and HWY 85. Liberty Draw is the perfect place to call home, being just an hour's drive from Denver, Fort Collins, Boulder, and Longmont.
GENERAL INFORMATION
• Offered by His House Property Management
• We are seeking long-term tenants
• Visit our website today to complete an online rental application
• No smoking of any kind
• No possession, use, or cultivation of marijuana
• PET FRIENDLY! Maximum of 2 pets. Age, breed, and size restrictions apply.
• Tenant pays for all utilities (water, sewer, gas, electric, cable, internet, trash)
• Photos and Video Tour were previously recorded and is solely for the purpose of allowing prospective tenants to conveniently see the layout of the unit. The present-day condition and inclusions may vary slightly as compared to the video tour.
DISCLOSURES
• The advertising photos and video tour are solely for the purpose of allowing prospective tenants to conveniently see the layout of the unit. The present-day condition, inclusions, and paint colors may vary as compared to the photos and video. Prospective tenants are encouraged to conduct an in-person viewing of the unit.
• The stated listing information contained within this ad is considered reliable but not guaranteed.
FEES
• $55 Application Fee. Application fees charged are based on average cost incurred by His House Property Management in processing the rental application ($34.45 paid to third-party screening company, $20.55 to His House Property Management for application processing, review, and to conduct employment verifications). Colorado HB19-1106.
• $20 Monthly Resident Benefits Fee. This is a monthly mandatory fee charged to all residents and retained by His House Property Management. The advertised Rent will be increased by $20 per month. This fee is due at the time the tenant takes possession.
• $250 One-Time Lease Administration Fee. This is a one-time mandatory fee charged to all residents and retained by His House Property Management. This fee is due at the time the tenant takes possession of the unit.
• Security deposit payments are required to be paid in Certified Funds (Cashier's Check or Money Order).
• Tenant must purchase and maintain a Renter’s Insurance policy with limits of liability no less than $100,000 prior to the beginning of the lease term and subsequently upon request.
PET FEES
• If you have Pets, you will be required to pay fees to a third-party software company (PetScreening) for the creation of pet profile(s). There is no charge ($0) for assistance animal accommodation requests or no pet/animal profiles.
His House Property Management is committed to compliance with all federal, state, and local fair housing laws. His House Property Management will not discriminate against any person because of race, color, religion, national origin, sex, familial status, disability, or any other specific classes protected by applicable laws.
AMENITIES:
* Central A/C
* Stainless Appliance Package
* Heated 2-Car Garage
* Washer/Dryer Included
By submitting your information on this page you consent to being contacted by the Property Manager and RentEngine via SMS, phone, or email.
3961 Pinnacles Ct is located in Evans, CO in the 80634 zip code.
Contact
Evans, CO 80634
3961 Pinnacles Ct Gallery
Nearby Properties You Might Like
Within 50 Miles of 3961 Pinnacles Ct









